
Umbau Zweifamilienhaus, Hochdorf
Vorprojekt.
Das Zweifamilienhaus aus den 1990er-Jahren wird modernisiert. Es liegt am Rand von Hochdorf auf dem Rosenhügel, an der Grenze zu landwirtschaftlich genutzten Flächen. Das Quartier entstand in den 1980er- und 1990er-Jahren und unterlag einem Gestaltungsplan, weshalb Dachform und Ausrichtung der Gebäude ähnlich sind. Die Eingriffe erfolgen primär im Inneren, um den Bestand zu respektieren.


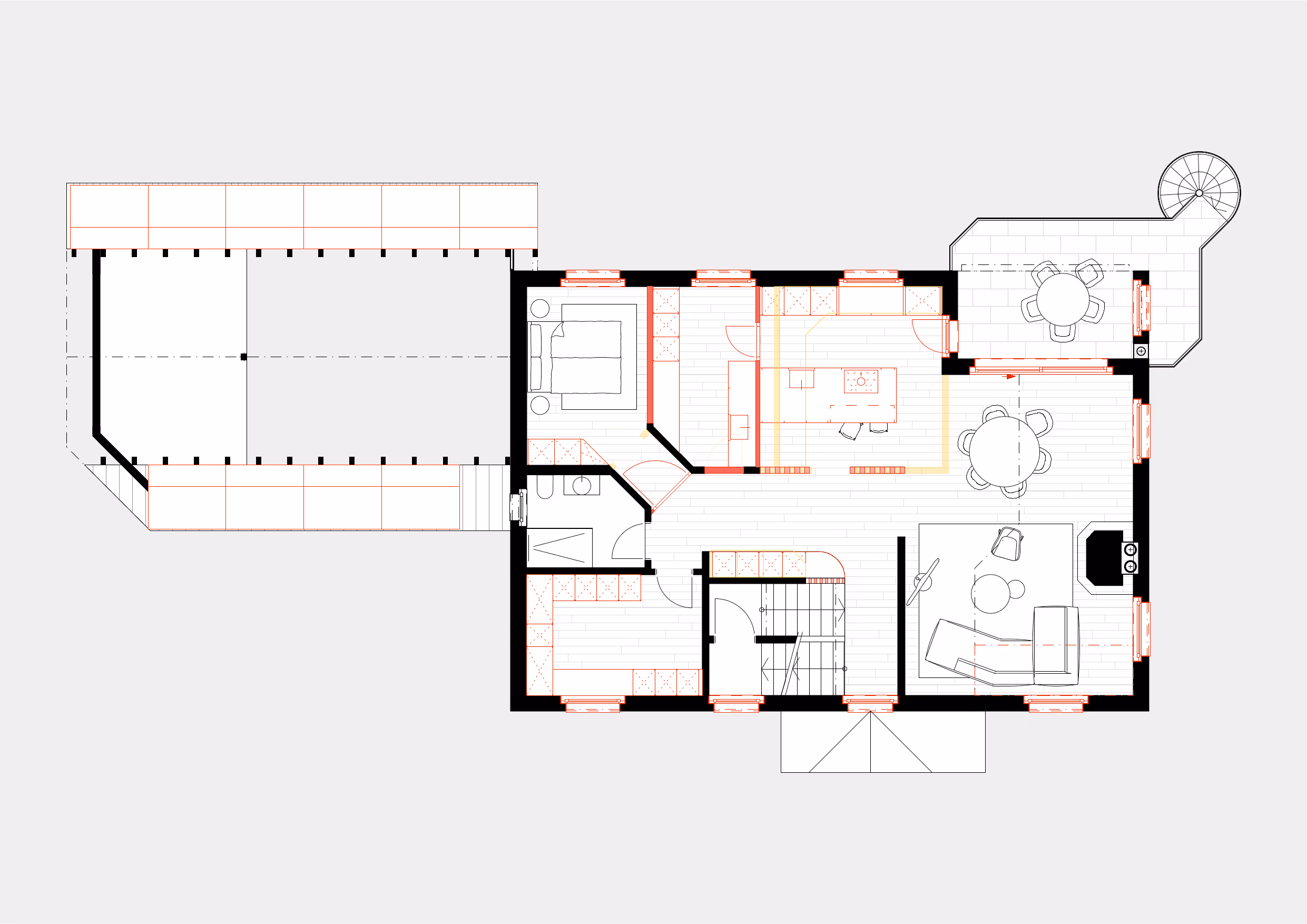
Die zweigeschossige Dachwohnung wird grundsaniert und auf die heutigen wie künftigen Bedürfnisse der Bauherrschaft ausgerichtet. Im Obergeschoss entsteht ein offener Wohn- und Essbereich. Ein grossflächiges nordseitiges Dachfenster bringt weiches, natürliches Licht in den Raum. Die Küche erhält ein separates Reduit. Ergänzend sind ein Gästezimmer und eine Garderobe vorgesehen. Im Dachgeschoss erschliesst ein zentraler Korridor die privaten Räume. Raumhohe Öffnungen mit Glaseinsätzen lassen die Länge des Gebäudes spürbar werden. Schiebetüren ermöglichen das Verschliessen der Zimmer und zugleich eine flexible Offenheit.
Schiebetüren ermöglichen das Verschliessen der Zimmer und zugleich eine flexible Offenheit.Die Fassade bleibt weitgehend unverändert. Vorgesehen sind eine Photovoltaikanlage zur Eigenstromversorgung sowie neue Fenster und Storen. Einflügelig ausgeführte Fenster beruhigen das vorhandene unruhige Fassadenbild und wirken zeitgemässer. Der Verzicht auf die Mittelpartie erhöht ausserdem den Lichteintrag in die Innenräume. Prägend bleiben das perforierte bronzene Balkongeländer mit Wendeltreppe in den Garten aus dem Jahr 2021 sowie die in gefärbtem Beton ausgebildeten Brüstungen. Fenster, Storen und Blenden werden in einer zurückhaltenden Farbe gewählt, um ihre Präsenz zu reduzieren.





Mitwirkende
Auftraggeber
Privat
Architektur
Simon Oehen Architektur
Visualisierungen
Simon Oehen Architektur
Mandat
Architektur, Ausführungsplanung, Bauleitung
Kooperation
Verfahren
Direktauftrag
Termine
2026 Baubeginn


